Afgańska 2

Wrocław, dnia 18.03.2026 r.

OGŁOSZENIE NR 10/2026

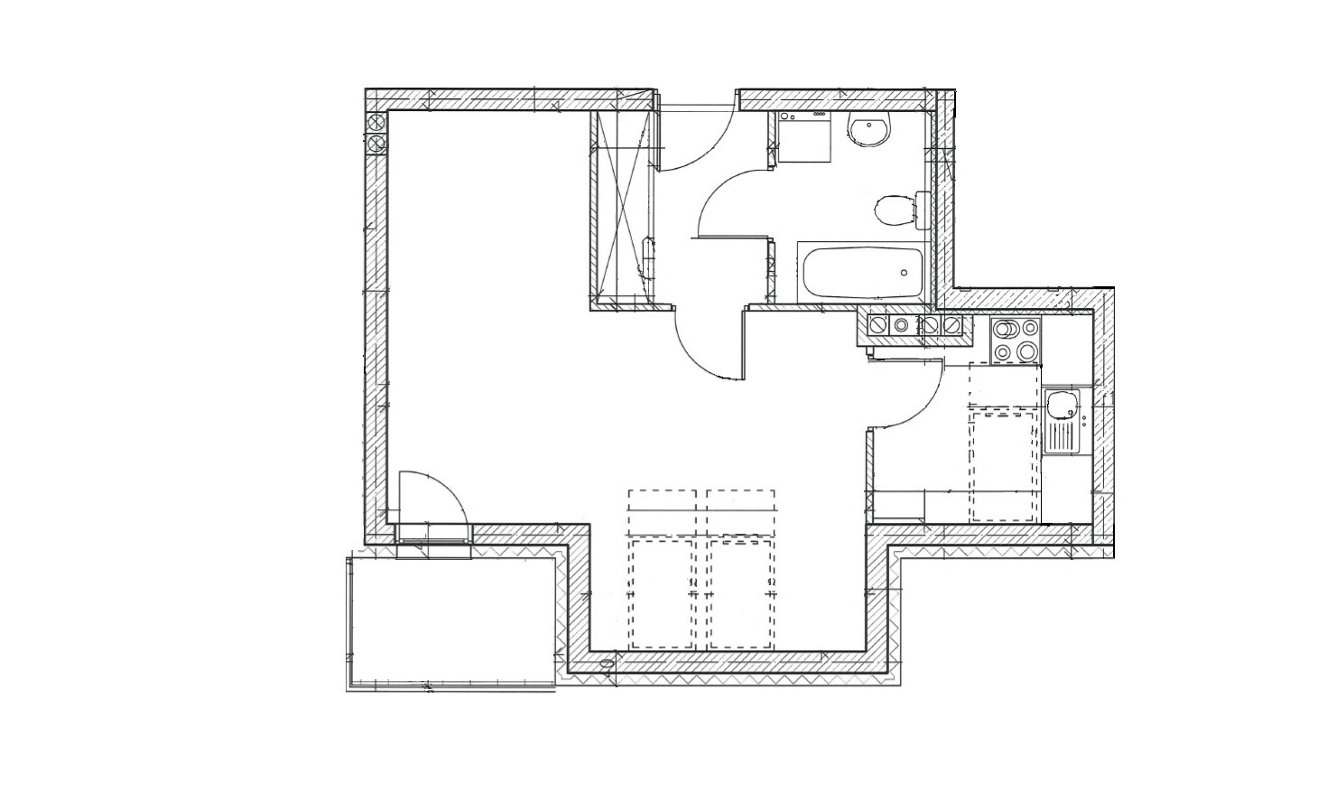
Towarzystwo Budownictwa Społecznego Wrocław Sp. z o. o ogłasza, że posiada do wynajęcia lokal mieszkalny przy ul. Afgańskiej 2 we Wrocławiu o powierzchni 30,15 m², składający się z:

  1. Przedpokoju                                             4,69 m2
  2. Pokój                                                         17,29 m2
  3. Łazienki                                                    3,79 m2
  4. Kuchnia                                                    4,38 m2

Mieszkanie położone jest na czwartym piętrze w czterokondygnacyjnym budynku z windą.
Wyposażone w instalację wodno – kanalizacyjną, elektryczną i instalację centralnego ogrzewania
(ogrzewanie z sieci miejskiej). Do mieszkania przynależy balkon.   

Budynek, w którym znajduje się przedmiotowe mieszkanie posiada świadectwo charakterystyki energetycznej – link.

Szczegółowy opis lokalu:

Przedpokój: na podłodze panele, ściany w kolorze białym;

Kuchnia: zlewozmywak + bateria zlewozmywakowa, kuchenka elektryczna z piekarnikiem, na podłodze panele, ściany w kolorze białym;

Pokój: na podłodze panele, ściany w kolorze białym;

Łazienka: na podłodze płytki ceramiczne, wanna z baterią wannową , szafka z umywalką, bateria umywalkowa, na ścianach płytki ceramiczne;

Lokal mieszkalny nie jest przystosowany dla osób z niepełnosprawnością.

Rzut mieszkania

Przewidywany termin odbioru mieszkania: kwiecień 2026 r.

Obowiązująca stawka czynszu za najem 1 m² powierzchni lokalu wynosi 21,65 zł/m².

Wysokość czynszu najmu wynosi 652,75 zł i opłaty niezależne (zaliczki na: zimną wodę i ścieki, podgrzanie wody, centralne ogrzewanie, gospodarowanie odpadami komunalnymi) – ok. 350-450 zł. Natomiast od dnia 01.07.2026 r. wysokość czynszu najmu wynosić będzie 682,90 zł, którą wyliczono w sposób następujący: 44,38 m2 p.u. x 22,65 zł/m2

Przyszły najemca partycypuje w kosztach budowy lokalu, stosownie do treści art. 29a Ustawy o społecznych formach rozwoju mieszkalnictwa.

Kwota partycypacji jaką zobowiązany jest wpłacić Partycypant wynosi 64 734,17 zł.

 

Ponadto przyszły najemca wpłaca kaucję zabezpieczającą w wysokości 1– krotnego miesięcznego czynszu – tj. 652,75 zł.

Kryteria dochodowe:

  1.  Na podstawie art. 30 Ustawy o społecznych formach rozwoju mieszkalnictwa, Spółka może wynająć lokal mieszkalny osobie fizycznej, która partycypuje w kosztach budowy lokalu, którego będzie Najemcą, przy spełnieniu następujących kryteriów:
  1. Osoba fizyczna oraz osoby zgłoszone do wspólnego zamieszkania, w dniu objęcia lokalu nie posiadają tytułu prawnego do innego lokalu mieszkalnego na terenie m. Wrocławia
  2. Średni miesięczny dochód gospodarstwa domowego, w roku poprzedzającym rok, w którym jest zawierana umowa najmu lokalu, nie może przekroczyć dochodu przedstawionego w tabeli nr 1.
  1. Spółka może wynająć lokal mieszkalny w swoich zasobach osobie posiadającej tytuł prawny do lokalu w innej miejscowości lub osobie wchodzącej w skład gospodarstwa domowego, którego członek posiada tytuł prawny do lokalu w innej miejscowości, jeżeli zmiana miejsca zamieszkania jest związana z podjęciem przez członka gospodarstwa domowego pracy w pobliżu miejsca położenia zasobów Spółki, w których znajduje się lokal, o którego wynajem się ubiega.

TABELA NR 1. Maksymalny dochód gospodarstwa domowego

Dla inwestycji, których lokale mieszkalne zostały wybudowane przy wykorzystaniu finansowania zwrotnego – art. 30 ust 1 pkt 2a ustawy o społecznych formach rozwoju mieszkalnictwa

Liczba osób w
gospodarstwie domowym

1 osoba

2 osoby

3 osoby

4 osoby

5 osób

6 osób

Dochód gospodarstwa domowego nie przekracza
1,5 przeciętnego miesięcznego wynagrodzenia więcej niż o:

5%

55%

90%

125%

160%

195%

Maksymalny dochód* gospodarstwa domowego w zł

11 703,43 zł 

16 969,97 zł

20 481,00 zł

23 992,02 zł

28 088,22 zł

32 184,42 zł

*za dochód uważa się przychód pomniejszony m.in. o koszty uzyskania przychodu oraz składki ZUS zgodnie art. 3 pkt 1 ustawy z dnia 28 listopada 2003r. o świadczeniach rodzinnych (t.j.:  Dz. U. z 2025 r. poz. 1208 ).

Minimalny łączny dochód netto, jaki musi uzyskiwać przyszły Najemca wraz z osobami zgłoszonymi do wspólnego zamieszkania, został określony w tabeli nr 2.

TABELA NR 2. Minimalny dochód netto gospodarstwa domowego

Liczba osób
w gospodarstwie domowym

1 osoba

2 osoby

3 osoby

4 osoby

5 osób

6 osób

Minimalny miesięczny dochód netto dla osób ubiegających się o mieszkanie w TBS Wrocław na poszczególne gospodarstwa w zł

3 x czynsz*

3 x czynsz*

+ 400 zł

3 x czynsz*

+ 800 zł

3 x czynsz*

+1 400 zł

3 x czynsz*

+ 1 800 zł

3 x czynsz*

+ 2 400 zł

*czynsz oznacza kwotę podaną w ogłoszeniu, bez opłat za media

Jeśli wnioskodawca nie będzie spełniał wskazanego w tabeli nr 2 kryterium minimalnego dochodu, może on wskazać nie więcej niż jedną osobę jako poręczyciela, przy czym w takim przypadku wnioskodawca musi uzyskiwać dochód netto co najmniej w wysokości wskazanego w ogłoszeniu czynszu dla lokalu, w przypadku wskazania ”ZEROWEGO” dochodu aktualnego, wnioskodawca zobowiązany będzie do wskazania dwóch poręczycieli. Poręczyciel/e przystępuje/ją do zobowiązania Najemcy z tytułu zapłaty czynszu najmu i opłat niezależnych od Wynajmującego i będzie/będą ponosić wraz z Najemcą solidarną odpowiedzialność za zapłatę na podstawie umowy poręczenia.

Każdy z poręczycieli musi uzyskiwać miesięczny dochód netto w wysokości sumy jednego czynszu wskazanego w ogłoszeniu dla lokalu oraz przeciętnego miesięcznego wynagrodzenia brutto w gospodarce narodowej ogłoszonego przez Prezesa Głównego Urzędu Statystycznego za rok poprzedzający rok, w którym odbywa się nabór na lokal. Poręczyciel/e potwierdza/ją swój dochód oświadczeniem zamieszczonym we wniosku.

 

Komisja Mieszkaniowa wyłoni przyszłego Partycypanta i Najemcę zgodnie z ,,Procedurą wyboru najemców dla zwalnianych lokali mieszkalnych w zasobie mieszkaniowym TBS Wrocław Sp. z o. o., co do których umowa najmu została wypowiedziana lub lokali, które zostały opróżnione i oddane do dyspozycji TBS Wrocław Sp. z o.o.” (patrz wyciąg link).

Wymagane dokumenty:

Celem weryfikacji czy osoba zainteresowana najmem lokalu mieszkalnego spełnia warunki określone w art. 30 Ustawy o społecznych formach rozwoju mieszkalnictwa, Wnioskodawca zobowiązany jest do złożenia następujących dokumentów:

  • Wniosek o najem lokalu mieszkaniowego (pobierz: wniosek .pdf)
  • Zaświadczenie właściwego miejscowo Urzędu Skarbowego o wysokości dochodów uzyskanych     w roku poprzedzającym przez osobę ubiegającą się o najem lokalu oraz osoby zgłoszone przez nią do wspólnego zamieszkania.

Wnioski o zawarcie umowy najmu wypełnione wyłącznie na wzorze załączonym do ogłoszenia wraz       z zaświadczeniem z urzędu skarbowego przyjmowane są do dnia 25.03.2026 r. do godz. 15:00.

Dokumenty przesłane po upływie wyżej wskazanego terminu nie będą uwzględniane. Za datę wpływu uznaje się datę dostarczenia wniosku do siedziby Spółki przy ul. Stanisława Przybyszewskiego 102-104 we Wrocławiu (osobiście, listownie lub mailowo), co oznacza, że wnioski wysłane do Spółki przed upływem terminu, a dostarczone do siedziby Spółki po terminie, zostaną odrzucone.

Dokumenty przekazywane drogą elektroniczną należy wysyłać na adres: ogloszenia@tbs-wroclaw.com.pl wyłącznie w jednym e-mailu w formacie .pdf.

Warunkiem zarejestrowania wniosku przez pracownika Biura Obsługi Klienta jest wpisanie we wniosku:

- numeru ogłoszenia

- adresu mieszkania, którego dotyczy wniosek

- imienia/imion i nazwiska/nazwisk wnioskodawcy/ów

- dołączenie zaświadczenia właściwego miejscowo Urzędu Skarbowego o wysokości dochodów wszystkich osób pełnoletnich wpisanych we wniosku

Zachęcamy do składania wniosków drogą elektroniczną, ponieważ w przypadku uzyskania tej samej ilości punktów przez kilku wnioskodawców o wyłonieniu na najemcę decyduje kolejność wpływu wniosku.

Wybór kandydata przedmiotowego lokalu zostanie umieszczony na stronie TBS Wrocław (www.tbs-wroclaw.com.pl) w zakładce – Zostań Najemcą TBS – Sprawdź aktualną ofertę mieszkań w dniu  27.03.2026 r.

 

Osoby zainteresowane wynajmem lokali mieszkalnych prosimy o kontakt pod numerami telefonów:

 

71/325 28 95 i 71/325 33 38 wew. 100, 123, 124, 125, 126, 127 od poniedziałku do piątku w godz. od 800 do 1500.

 

Zmiana rozmiaru czcionki

Zmiana kontrastu